2018年9月,博革咨詢為石化行業某公司的物資倉庫進行為期三個月的物資倉庫6S之旅,時間緊任務重,我們又是如何在這三個月的時間里,來打造出一個標桿6s現場的呢?
博革對該公司的物資倉庫6s打造一共有10個步驟。而前期的規劃設計,對沒有做6s的現場來說,則是重中之重。那么,前期需要哪幾步呢?
物資倉庫6S打造
第一步對項目進行規劃,公司內部成立物資倉庫6S推進小組,與咨詢老師一起查看現實找差距。吸收業內優秀經驗,創造屬于自己風格管理模式,打造行業內一流物資倉庫管理。將項目剝繭抽絲,細化項目要求。博革咨詢兩位老師和物資倉庫6S推行小組成員立足現場,討論項目的整體規劃并定案。

第二步組織全員6S培訓,并將項目周期細化到整體規劃內,以確保項目最終完成時間點。
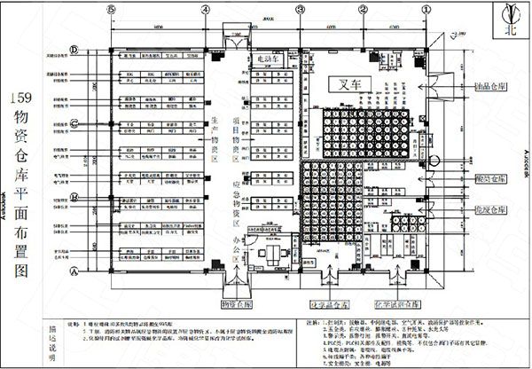
第三步物資倉庫布局重新調整,對新布局進行討論,并最后定案形成簽核檔。將新布局下需要的物資數量、搬運人力、購買材料等做了詳細的預算。如:159庫平面布置圖。

第四步指定各物資倉庫6S負責人,做到事事有人管,庫庫有責人。
第五步項目驗收標準制訂,在項目實施前訂立物資倉庫的6S項目標準,將倉庫做成我們想要的樣子。在6S推進小組成員和咨詢老師的共同努力下,將項目驗收標準已制訂完成。

第六步制訂物資倉庫各庫位的編碼原則,將編碼錄入系統中進行賬物對應,以編碼作為索引,快速查找物品。

第七步制訂項目實施計劃,規范實施過程異常處理辦法,定期召開項目月度總結會議,將項目的進度和執行人員的執行情況進行總結。

制訂了第一階段整理、清掃、安全和第二階段整頓、清潔、素養實施的詳細計劃。將規劃做詳細,對每個細節精益求精,每周對項目的進度進行總結。
前面7步是后面基礎,更是整個項目完成的保障。
第八步項目實施計劃執行(詳詢6s咨詢)
第九步物資倉庫目視化的規劃與實施(詳詢目視化)
第十步項目驗收結案!
作者:博革咨詢
推薦新聞

.png)